日期:2025-11-24瀏覽: 來源:不朽情緣特
大流量濾芯過濾器不朽情緣_官方網站概述
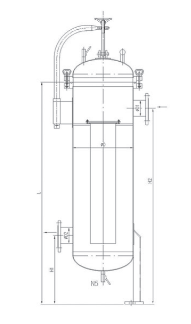
RO反滲透預處理大流量濾芯在反滲透水處理設備預過濾等下類似高流量濾芯應用領域中,與標準的2.5英寸濾芯大大降低投資成本。每支RO反滲透預處理大流量濾芯的處理流量可以達到30T/h,因此可以減少濾芯的使用數量并且減少過濾器殼體的尺寸。
過濾器的設計可以使用在每個大流量濾芯,與一般型號相比,過濾器允許更大尺寸的濾芯,并減少投資生產費用,水平設計和無心結構在更換濾芯時更方便和快速。
RO反滲適預處理大流量濾芯尺寸規格:
外徑: 152mm內徑: 89mm
長度: 1016mm
RO反滲透預處理大流量濾芯結構材質:
過濾層:微濾聚丙烯(PP)
支撐層:聚丙烯(PP)
端蓋:玻璃纖維增強聚丙烯
0型圈:三元乙丙橡膠、氟橡膠
